House 1
Living functions are arranged into a compact, square tower on a small, corner lot. This preserves open space and existing trees and maximizes views to Downtown Atlanta. Other volumes are placed outside the square and casually plug into the tower, creating an effortless, vertical alignment of services and circulation.




House 2
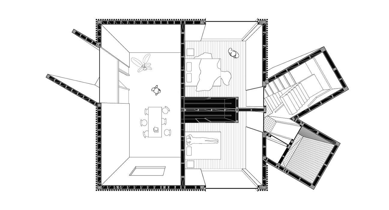
For a through lot, the second house is flipped: living spaces are reconfigured horizontally rather than vertically. Similar to the first house, the stairs and bathrooms are placed outside the main volume and casually “plug in” to serve two levels. The bar’s elongated plan creates an unusual yet efficient arrangement, reminiscent of the shotgun vernacular. At the same time, the house is wider (17’), more open, and less compartmentalized than its historic precedent. At the top level, the 72’ length of the plan becomes a runway-like deck.

House 1 and 2 are based on a kit of parts that can recombine to fit vacant lots near downtown Atlanta, and, in a way, it is also an urban system or masterplan.

Project Information
| Type | Single Family Residential |
|---|---|
| Location | Atlanta, GA |
| Status | (House 1) Construction Drawings, 2014 (House 2) Concept Design, 2014 |
| Scale | 1,850 SF |
| Consultants | Daniel Urrutia, PE (Structural Engineer) |
| Team | (House 1) Aurelia Adams, Adam Frampton, Joseph Kennedy, Ryan Peeters, Jon Siani (House 2) Aurelia Adams, Karolina Czeczek, Adam Frampton |
